Настенный газовый котел Vaillant turboTEC plus VUW INT 282/5-5
Уважаемые покупатели, в связи с нестабильными курсами цены на товары уточняйте у менеджера по телефону.
Описание
Турбированный котел turboTEC позволяет смонтировать систему подачи воздуха и удаления дымовых газов через стену.
Маркировка VUW означает, что данная модель - двухконтурная.
Особенности:
— Модулирующая горелка из хромоникелевой стали для регулирования мощности котла
— Встроенное приготовление горячей воды
— Усовершенствованный контроль ГВС
— Принудительный отвод продуктов сгорания
— Регулирование температуры горячей воды
— Автоматическое переключение в режим приготовления горячей воды при её расходе от 1,5 л/мин
— Управление мощностью нагрева в зависимости от расхода и температуры нагреваемой воды
— Установка в том числе в жилой зоне, подходит для сложных участков, где невозможно смонтировать обычный дымоход
— Минимальный боковой зазор 10 мм, все узлы доступны спереди
— Жидкокристаллический дисплей с подсветкой, кнопочное управление
— Внутреннее программное обеспечение для контроля состояния, настройки параметров и поиска неисправностей
— Встроенный проточный пластинчатый теплообменник для нагрева горячей воды
— Встроенный циркуляционный насос с автоматическим переключением ступеней
— Закрытый расширительный бак
— Автоматический воздухоотводчик
— Предохранительный вентиль и приоритетный предохранительный вентиль с электроприводом
— "Интеллектуальный" контроль давления в системе отопления
— Первичный теплообменник из меди
— Защита от замерзания
— Защита от заклинивания насоса и трёхходового вентиля
— Режимы "Зима" и "Лето"
— Возможность настройки на частичную мощность в режиме отопления
— Электронное зажигание и управление всеми функциями
— В комплект поставки входит присоединительный набор
— Встроенный коммутационный модуль для интерфейса стандарта e-bus
— Не используется в каскадных установках
Характеристики
Технические характеристики
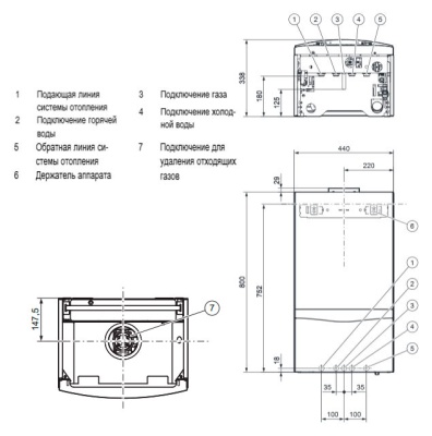
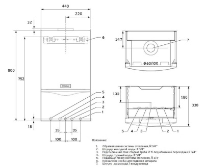
Габариты и вес
Производитель и Гарантия



























































































