Vaillant turboTEC plus VUW INT 362-5 Настенный газовый котел
Уважаемые покупатели, в связи с нестабильными курсами цены на товары уточняйте у менеджера по телефону.
Описание
Турбированный котел turboTEC позволяет смонтировать систему подачи воздуха и удаления дымовых газов через стену.
Маркировка VUW означает, что данная модель - двухконтурная.
Особенности:
— Модулирующая горелка из хромоникелевой стали для регулирования мощности котла.
— Встроенное приготовление горячей воды.
— Усовершенствованный контроль ГВС.
— Принудительный отвод продуктов сгорания.
— Регулирование температуры горячей воды.
— Автоматическое переключение в режим приготовления горячей воды при её расходе от 1,5 л/мин.
— Управление мощностью нагрева в зависимости от расхода и температуры нагреваемой воды.
— Установка в том числе в жилой зоне, подходит для сложных участков, где невозможно смонтировать обычный дымоход.
— Минимальный боковой зазор 10 мм, все узлы доступны спереди.
— Жидкокристаллический дисплей с подсветкой, кнопочное управление.
— Внутреннее программное обеспечение для контроля состояния, настройки параметров и поиска неисправностей.
— Встроенный проточный пластинчатый теплообменник для нагрева горячей воды.
— Встроенный циркуляционный насос с автоматическим переключением ступеней.
— Закрытый расширительный бак.
— Автоматический воздухоотводчик.
— Предохранительный вентиль и приоритетный предохранительный вентиль с электроприводом.
— "Интеллектуальный" контроль давления в системе отопления.
— Первичный теплообменник из меди.
— Защита от замерзания.
— Защита от заклинивания насоса и трёхходового вентиля.
— Режимы "Зима" и "Лето".
— Возможность настройки на частичную мощность в режиме отопления.
— Электронное зажигание и управление всеми функциями.
— В комплект поставки входит присоединительный набор.
— Встроенный коммутационный модуль для интерфейса стандарта e-bus.
— Не используется в каскадных установка!
Характеристики
Технические характеристики
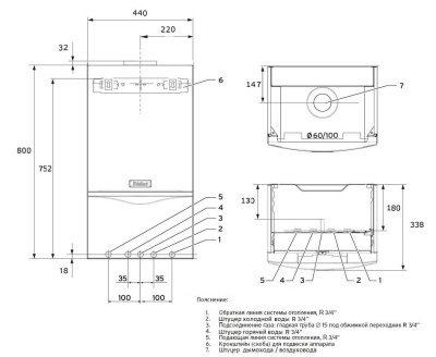
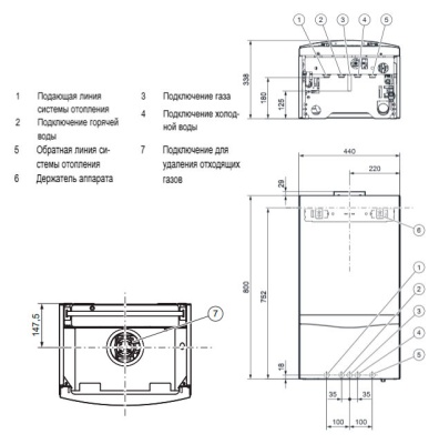
Габариты и вес
Производитель и Гарантия



























































































