Vaillant atmoTEC plus VUW INT 200-5 Настенный газовый котел
Уважаемые покупатели, в связи с нестабильными курсами цены на товары уточняйте у менеджера по телефону.
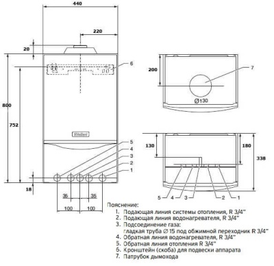
Описание
Настенный газовый котел с естественным отводом продуктов сгорания серии atmoTEC plus.
Особенности:
• Встроенный проточный пластинчатый теплообменник для нагрева воды, противодействующий образованию накипи
• Встроенный циркуляционный насос с автоматическим переключением ступеней
• Закрытый расширительный бак
• Автоматический воздухоотводчик
• Автоматический настраиваемый перепускной вентиль
• Предохранительный вентиль
• Приоритетный переключающий вентиль с электроприводом
• Интеллектуальный контроль давления в системе отопления
• Горелка из хромо-никелевой стали
• Постоянно действующая защита от замерзания
• Защита от заклинивания насоса и трёхходового вентиля
• Переключатель “ЗИМА/ЛЕТО”
• Возможность настройки на частичную мощность в режиме отопления
• Электронное зажигание и управление всеми функциями
•Контроль состояния и поиск неисправностей через систему диагностики с ЖК-дисплеем с подсветкой и большими кнопками
Характеристики
Технические характеристики
Габариты и вес
Производитель и Гарантия





















































































