Vaillant ecoTEC plus VU 246/5-5 настенный конденсационный газовый котел
202 566 руб.
Нет в наличии
Нашли дешевле?
Внимание!!! Остерегайтесь подделок по низким ценам и товаров с браком. Мы официальные дилеры многих брендов. У нас только оригинал, и брак исключен.
Уважаемые покупатели, в связи с нестабильными курсами цены на товары уточняйте у менеджера по телефону.
Описание
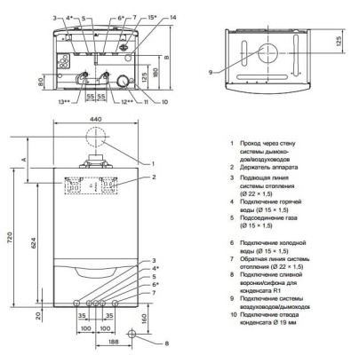
Газовые Vaillant ecoTEC plus VU - это одноконтурные настенные конденсационные котлы, которые могут служить для отопления Вашего дома, а также (при подключении ёмкостного водонагревателя) для приготовления горячей воды.Котлы этой серии идеальны для создания компактных крышных котельных.
Используют скрытую теплоту конденсации и обеспечивают КПД до 109% за отопительный сезон.
Котлы оснащены модулирующей горелкой с предварительным принудительным смешением с диапазоном мощности от 20 до 100%, дисплеем с подсветкой, встроенным двухступенчатым насосом, встроенным модулем для интерфейса стандарта eBus.
Особенности:
- Дисплей с подсветкой и дублированием кодов сообщения текстовой строкой
- Управление горением на основе контроля расхода воздуха
- Встроенный двухступенчатый насос системы отопления с автоматическим переключением, автоматический воздухоотводчик, предохранительный вентиль, 10литровый расширительный бак, отвод конденсата из аппарата и системы дымоходов через встроенный сифон
- Аналоговый датчик давления
- Конденсационный теплообменник из нержавеющей стали
- Вентилятор с регулируемым числом оборотов
- Электронное регулирование коэффициента избытка воздуха
- Горелка с предварительным принудительным смешением
- Возможность настройки на частичную мощность для режима отопления и нагрева воды
- Система AquaKondens (для использования теплоты конденсации при нагреве воды)
- Электронное зажигание и контроль процесса горения
- Встроенный коммутационный модуль для интерфейса стандарта eBus
Характеристики
Основные характеристики
Технические характеристики
Габариты и вес
Производитель и Гарантия
Технические характеристики
Габариты и вес
Производитель и Гарантия
Будьте всегда в курсе!
Узнавайте о скидках и акциях первым
Новости
Все новости
29 апреля 2024
Режим работы в праздники
22 февраля 2023
Поздравляем с 23 февраля!
26 декабря 2022
Режим работы в праздничные дни























































































